- Stödjer läraktiviteterna: Föreläsning, gruppaktiviteter, seminarium
- Hybridfunktionalitet (Zoomutrustad): Ja
- Lokalisering: Plan 2
- Rumsstorlek: 45 kvadratmeter
- Antal platser: 16
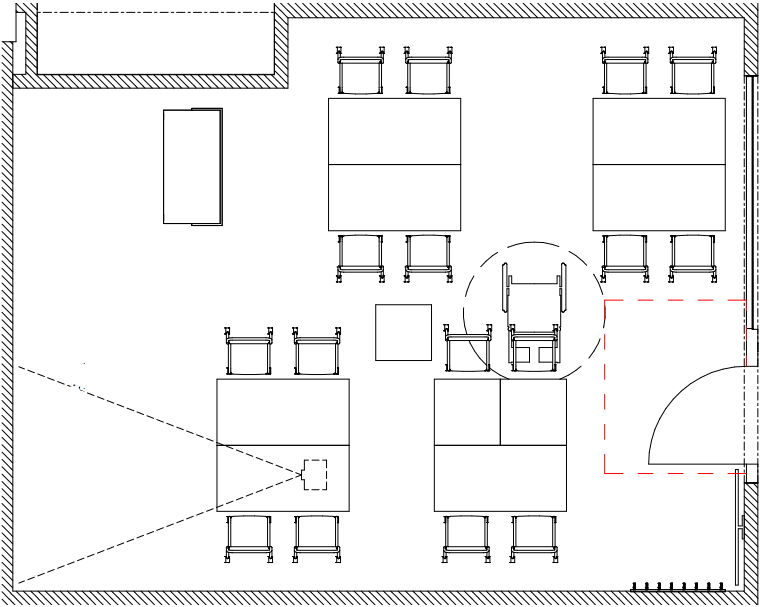
Salen är möblerad i radsittning som standard. Salen kan enkelt ställas om till alternativ möblering för att möjliggöra grupparbete eller samtal i grupp/-er. Möbler är på hjul och stapelbara. Flera väggar i rummet har skrivyta.
Rummet är hybridutrustat. I ett hybridutrustat rum går det att hålla möten där deltagare på plats och via Zoom kan kommunicera med varandra med video, ljud och skärmdelning.
Standardmöblering
Möbleringsalternativ

Möbler
- 16 st stolar på hjul, stapelbara
- 7 st rektangulära bord på hjul, fällbara
- 2 st kvadratiska höj- och sänkbara enkelbord
- Whiteboardytor på vägg
- 1 st höj- och sänkbar pulpet längst fram
Teknik
- Projektor: Ja
- Skärm för samskapande: Nej
- Skärm för samskapande och hybridmöte: Nej
- Salsdator: Nej
- Dokumentkamera: Ja
- Demonstrationskamera i tak: Nej
- Whiteboardkamera: Nej
- Röstförstärkning: Ja
- Hörhjälpmedel: Ja
