- Stödjer läraktiviteterna: Föreläsning, gruppaktiviteter, seminarium
- Hybridfunktionalitet (Zoomutrustad): Ja
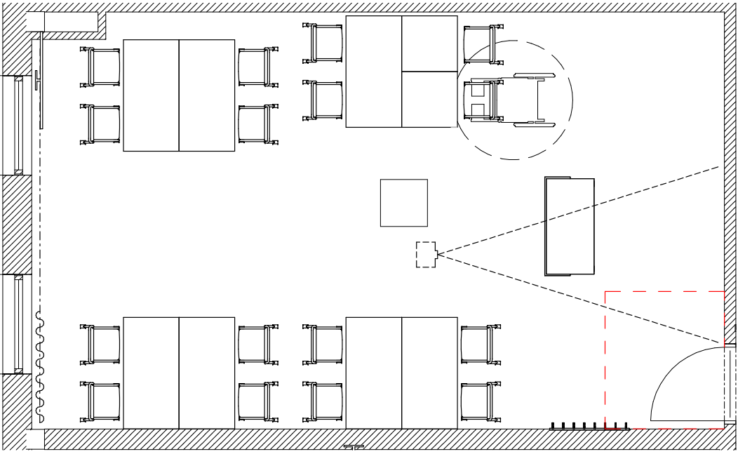
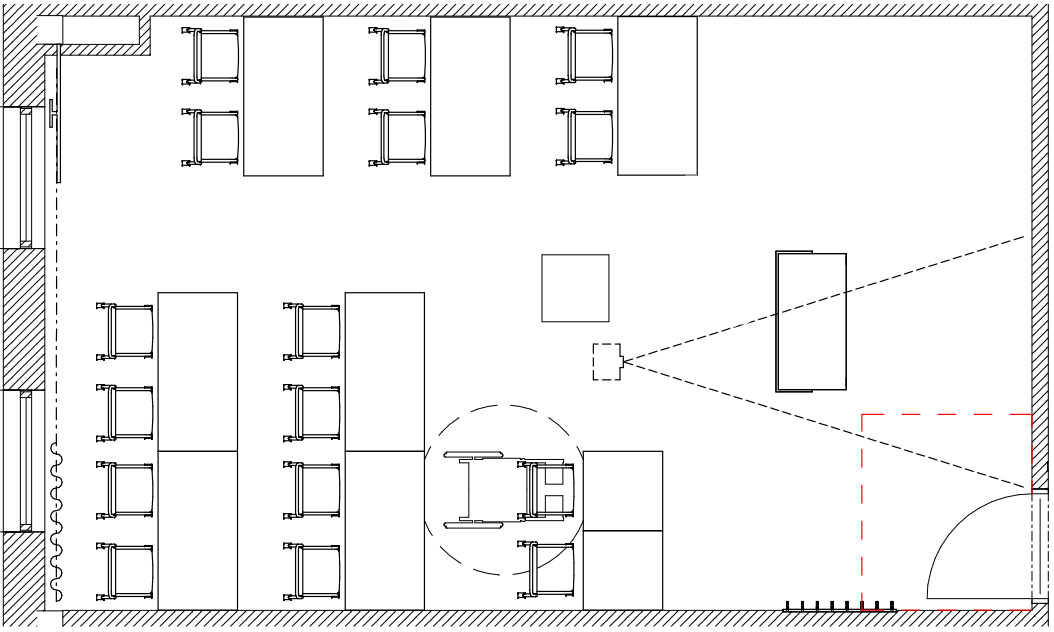
- Lokalisering: Plan 2
- Rumsstorlek: 45 kvadratmeter
- Antal platser: 16
Salen är möblerad i radsittning som standard. Relativt enkelt kan salen ställas om till alternativ möblering för att möjliggöra grupparbete eller samtal i grupp/-er. Flera väggar i rummet har skrivyta.
Rummet är hybridutrustat. I ett hybridutrustat rum går det att hålla möten där deltagare på plats och via Zoom kan kommunicera med varandra med video, ljud och skärmdelning.
Standardmöblering

Möbleringsalternativ

Möbler
- 16 st stolar på hjul, stapelbara
- 7 st rektangulära bord
- 2 st kvadratiska höj- och sänkbara enkelbord
- Whiteboardytor på vägg
- Höj- och sänkbar pulpet längst fram
Teknik
- Projektor: Ja
- Skärm för samskapande: Nej
- Skärm för samskapande och hybridmöte: Nej
- Salsdator: Nej
- Dokumentkamera: Ja
- Demonstrationskamera i tak: Nej
- Whiteboardkamera: Nej
- Röstförstärkning: Ja
- Hörhjälpmedel: Ja
Senast granskad:
