- Stödjer läraktiviteterna: Laboration, föreläsning, gruppaktiviteter
- Hybridfunktionalitet (Zoomutrustad): Ja
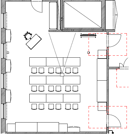
- Lokalisering: Plan 4
- Rumsstorlek: 80 kvadratmeter
- Antal platser: 18
Standardmöblering


Möbler
- 18 st stolar
- 9 st bord
- 1 st höj- och sänkbar pulpet längst fram
- Labbstationer utmed bänkytor längs väggarna
Teknik
- Projektor: Ja
- Skärm för presentation och samskapande: Nej
- Salsdator: Nej
- Dokumentkamera: Ja
- Demonstrationskamera i tak: Nej
- Whiteboardkamera: Nej
- Röstförstärkning: Ja
- Hörhjälpmedel: Nej
Senast granskad: