- Stödjer läraktiviteterna: Laboration, föreläsning, gruppaktiviteter
- Hybridfunktionalitet (Zoomutrustad): Ja
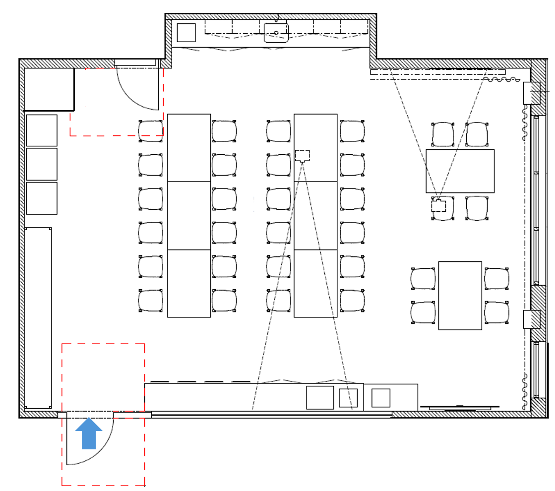
- Lokalisering: Plan 1
- Rumsstorlek: 89 kvadratmeter
- Antal platser: 32
Makerspace är en verkstad för lättare konstruktion och samarbete. 3d-printing, trä- och metallbearbetning, elektronik samt mycket annat samsas i samma lokal för att skapa synergier. Salen har också en plats anpassad till föredrag och föreläsare.
Standardmöblering

Möbler
- 32 st stolar
- 8 st bord
- Labbstationer utmed bänkytor längs väggarna
Teknik
- Projektor: Ja, 2 st
- Skärm för presentation och samskapande: Ja, 1 st 75"
- Salsdator: Nej
- Dokumentkamera: Ja
- Demonstrationskamera i tak: Nej
- Whiteboardkamera: Nej
- Röstförstärkning: Ja
- Hörhjälpmedel: Ja
Senast granskad: