- Stödjer läraktiviteterna: Laboration, föreläsning, gruppaktiviteter
- Hybridfunktionalitet (Zoomutrustad): Ja
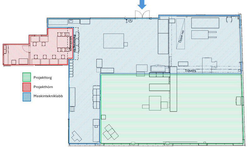
- Lokalisering: Plan 1
Laborationshall med ytor för olika typer av laborationer inom ingenjörsämnen (bygg-, maskin-, process-, AI-). Hallen inrymmer vissa fasta maskiner men är även flexibel för omställning anpassad för laborationer i undervisningen. Ytorna projekttorg, projekthörn och maskintekniklabb kan bokas var för sig.
AV-teknikstödet, som i andra lärmiljöer finns inbyggt i väggar, golv och tak, har här anpassats för att passa labbmiljön. En mobil teknikvagn, som står parkerad i projekthörn, skapar förutsättningar för samskapande aktiviteter, demonstrationer, laborationer och/eller möten oavsett om deltagarna finns på plats i labbet eller deltar via Zoom.
Standardmöblering

Möbler
- 6 st arbetsstationer med stol, bord och dator
- 6 st stolar möblerat kring gruppbord
Teknik
- Projektor: Nej
- Skärm för presentation: Ja, 55"
- Skärm för samskapande: Ja, 55"
- Salsdator: Nej
- Dokumentkamera: Nej
- Demonstrationskamera i tak: Nej
- Whiteboardkamera: Nej
- Röstförstärkning: Ja
- Hörhjälpmedel: Nej